
HD Тип европейски електрически повдигач с един железен надземен кран
European Single Girder Overhead Crane е компактен подемен механизъм, проектиран и произведен в строго съответствие с FEM и DIN стандарт, който с напреднала технология и красив дизайн. Разделени в общ тип и тип окачване, подкрепящи използването на европейски стандартни електрически повдигачи, подходящи за обработка на сервизни и складови материали, прецизен монтаж на големи части и други места.
HD Тип европейски електрически повдигач с един железен надземен кран
Кратко описание:
European Single Girder Overhead Crane е компактен подемен механизъм, проектиран и произведен в строго съответствие с FEM и DIN стандарт, който с напреднала технология и красив дизайн. Разделени в общ тип и тип окачване, подкрепящи използването на европейски стандартни електрически повдигачи, подходящи за обработка на сервизни и складови материали, прецизен монтаж на големи части и други места.

Тя може да се използва широко в машиностроенето, металургията, петрола, вредното пристанище, пристанището, железопътния транспорт, гражданската авиация, храната, производството на хартия, строителството, работилницата по електрониката, складовете и други. прилагани за обработка на материали, които се нуждаят от точно позициониране, прецизна сглобка на големи компоненти.

Подробни изображения:

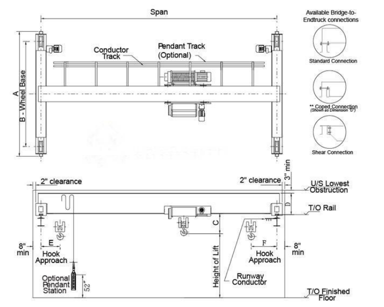
Чертеж на скица:

Технически параметри:
педя | m | 7.5 | 10.5 | 13.5 | 16.5 | 19.5 | 22.5 | 25.5 |
Капацитет | T | 1 ~ 12,5 т | ||||||
Общо тегло | килограма | 1781 ~ 12,086 | ||||||
Тегло на количката | килограма | 405 ~ 740 | ||||||
Макс. Натоварване на колелото | Кн | 13,5 ~ 90.94 | ||||||
Пътна железница | P24 ~ P43 | |||||||
Скорост на повдигане | м / мин | 0.8 / 5 | 0.8 / 5 | 0.8 / 5 | 0.8 / 5 | 0.8 / 5 | 0.8 / 5 | 0.8 / 5 |
Височина на повдигане | m | ≥ 6 | ≥ 6 | ≥ 6 | ≥ 6 | ≥ 6 | ≥ 6 | ≥ 6 |
Обща мощност на мотора | kw | 4.31 | 4.31 | 4.31 | 4.31 | 4.67 | 4.67 | 4.67 |
Скорост на кратера | м / мин | 3-30 | 3-30 | 3-30 | 3-30 | 3-30 | 3-30 | 3-30 |
Скорост на количката | м / мин | 2-20 | 2-20 | 2-20 | 2-20 | 2-20 | 2-20 | 2-20 |
Работно задължение | M5 / A5 | |||||||


English
Việt Nam
bosanski
Lietuvių
한국어
magyar
اردو
українська
عربي
Català
हिंदी
slovenčina





